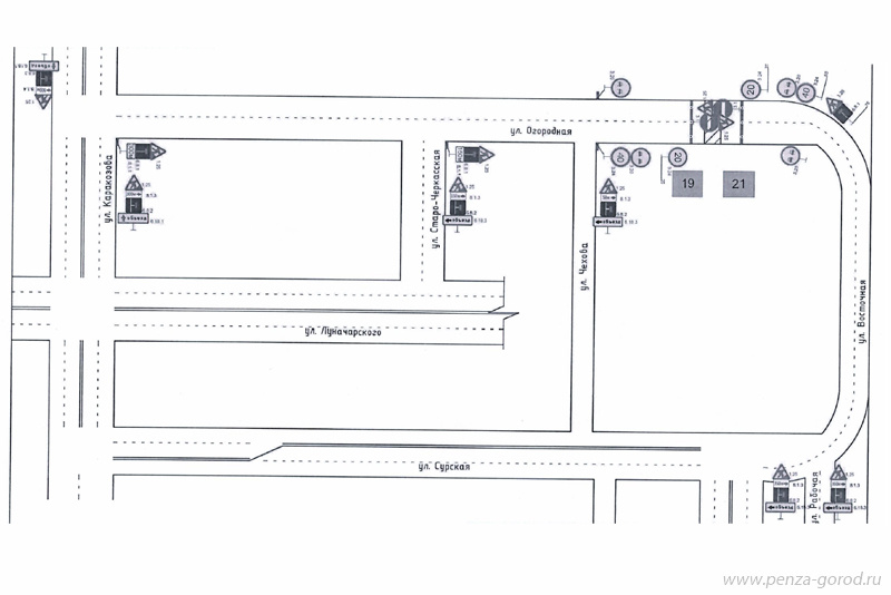
В Пензе на улице Огородной с 16 по 24 июня будет ограничено движение транспорта.
Перекрытие дороги в районе дома №19 связано с проведением аварийно-восстановительных работ на теплотрассе.

Городские службы приносят извинения за временные неудобства и просят водителей учитывать данную информацию при планировании маршрута.

